About this property
Property Summary
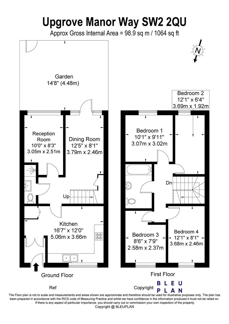
A newly refurbished 4-bedroom maisonette with private garden. The property has 4-bedrooms, 2 reception room, 2 bathrooms and is bright and airy.
The property is superbly placed within close proximity to a range of amenities in Tulse Hill, while bordering the enormous, green Brockwell Park.
The property is superbly placed within close proximity to a range of amenities in Tulse Hill, while bordering the enormous, green Brockwell Park.
Map
Documents
Mortgage Calculator
Monthly Costs:
Stamp Duty Calculator
Stamp Duty:
Rental Affordability Calculator
Your total income will need to be:
£-
If a guarantor is required then they will also need to have a total income of:£-
With this total income the monthly rent that you might be able to afford would be:














