About this property
Property Summary
Full Details
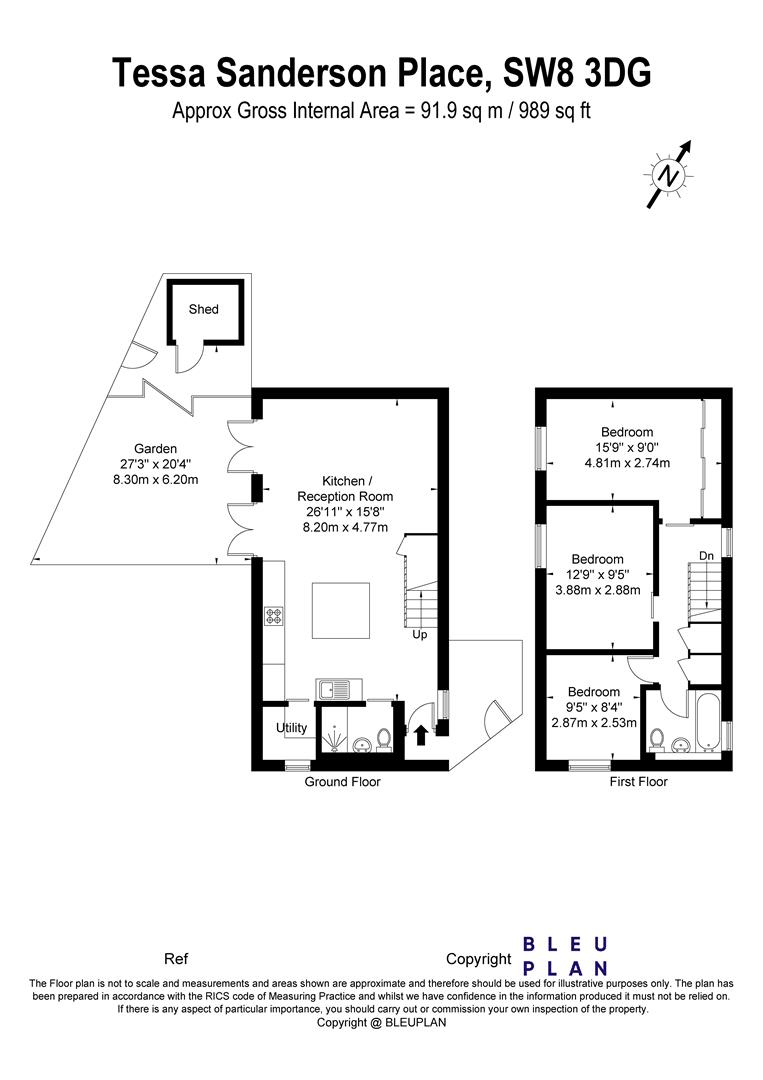
A superb three bedroom house of nearly 1000 sq.ft tucked away in a quiet pedestrianized road, within a short walk of Clapham Old Town and Battersea Park. The property has a superb open plan kitchen/living area downstairs, which was re-designed by the current owners. There is an attractive contemporary kitchen with a large centre island, lots of natural light and attractive wooden flooring. Off the living area are large sliding doors which offer access to an attractive well maintained west facing garden. There is also a downstairs shower room and separate utility room.
Upstairs there are three good size bedrooms, plenty of storage and a well presented family bathroom. There is also permit parking that is offered with this property.
Tessa Sanderson Place is a quiet pedestrianized terrace convenient for the vibrant Clapham Old Town with its many popular eateries, trendy bars and shops. Nearest stations for commuters are Queenstown rd rail station, Wandsworth rd rail station, and Clapham Common tube station.
Council Tax - D Epc Rating - E could be B
Property Features
- A spacious three double bedroom house of nearly 1000 sq ft
- Superb very spacious open plan kitchen/reception room
- Two bathrooms
- Close to Clapham Old Town and Battersea Park
- Attractive landscaped west facing garden
- Quiet pedestrianized location
- Very well presented throughout
- Ideal family home
- Numerous transport links on doorstep including Wandsworth Road BR and Nine Elms Battersea Power Station Underground













