About this property
Property Summary
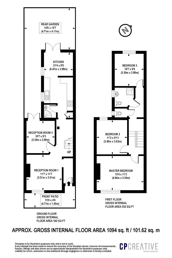
A spacious mid-terrace Victorian home. Ideal for professional sharers or a family, the house has a good size bathroom and kitchen, four double bedrooms, a spacious lounge, kitchen/dining room with lean-to, its own private rear garden, and ample storage. The home is within easy reach of Mile End tube station and Canary Wharf.
Map
Documents
Mortgage Calculator
Monthly Costs:
Stamp Duty Calculator
Stamp Duty:
Rental Affordability Calculator
Your total income will need to be:
£-
If a guarantor is required then they will also need to have a total income of:£-
With this total income the monthly rent that you might be able to afford would be:









