About this property
Property Summary
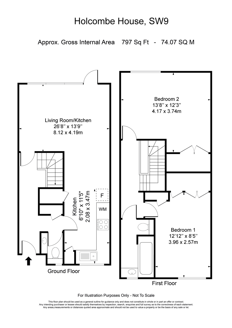
A two double bedroom split level apartment close to Clapham North station. The property is very well proportioned throughout and gets plenty of natural light. As it is currently occupied by the owners, it has been kept in good condition, giving it a homely feel.
There are an array of popular shops, cafes, bars and restaurants to be found in the immediate vicinity as well as being conveniently located for Clapham North Tube Station.
There are an array of popular shops, cafes, bars and restaurants to be found in the immediate vicinity as well as being conveniently located for Clapham North Tube Station.
Full Details
DESCRIPTION
A two double bedroom split level apartment close to Clapham North station. The property is very well proportioned throughout and gets plenty of natural light. As it is currently occupied by the owners, it has been kept in good condition, giving it a homely feel.
There are an array of popular shops, cafes, bars and restaurants to be found in the immediate vicinity as well as being conveniently located for Clapham North Tube Station.
Property Features
- Two Double Bedrooms
- Bright and Airy
- Split Level
- Close to Clapham North
- Double Glazing
- Good Sized Apartment
- Balcony
Map
Documents
Mortgage Calculator
Monthly Costs:
Stamp Duty Calculator
Stamp Duty:
Rental Affordability Calculator
Your total income will need to be:
£-
If a guarantor is required then they will also need to have a total income of:£-
With this total income the monthly rent that you might be able to afford would be:









